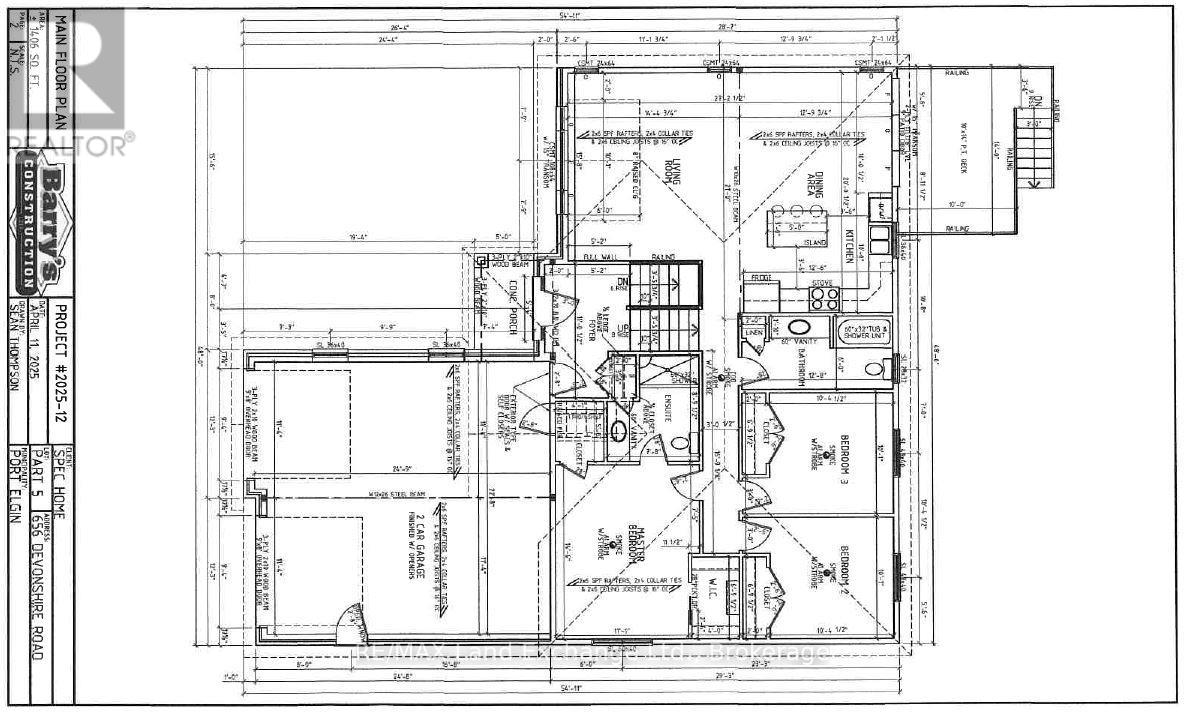
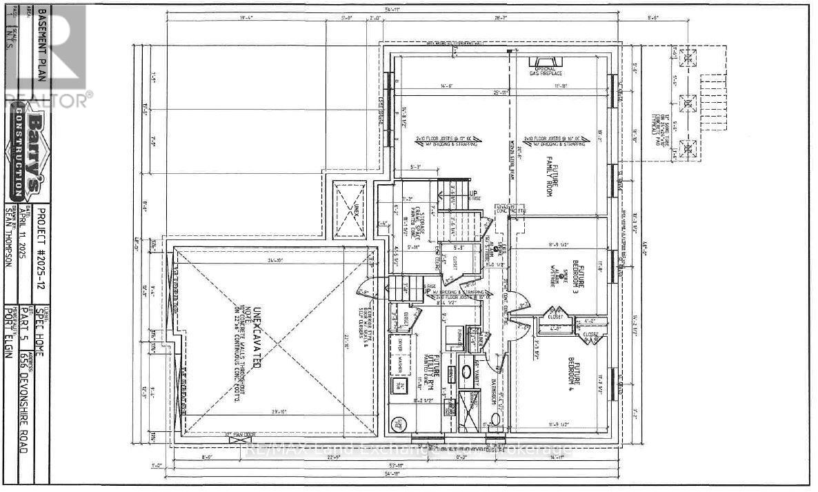
On a lot measuring 56ft x 182 ft, this 1406 sqft, 3 + 2 bedroom, 3 bath home is under construction. The location is 656 Devonshire Road in Port Elgin just a short walk to the rail trail, Food Basics, and the new Saugeen Shores Aquatic Center. The main floor is open concept with 9ft ceilings, vinyl plank and ceramic flooring, walkout to a 10 x 14 deck, Quartz kitchen counter tops and spacious entrance foyer. The basement will be finished and include a family room with gas fireplace, 2 bedrooms, 3pc bath, laundry / utility room with access to the 2 car garage measuring 22'8 x 24'. The yard will be completely sodded and a concrete drive will be in place. HST is included in the list price provided the Buyer qualifies for the rebate and assigns it to the Builder on closing. Prices subject to change without notice. (id:56591)
| MLS® Number | X12110957 |
| Property Type | Single Family |
| Community Name | Saugeen Shores |
| Community Features | Community Centre |
| Equipment Type | Water Heater, Water Heater - Tankless |
| Features | Flat Site, Sump Pump |
| Parking Space Total | 6 |
| Rental Equipment Type | Water Heater, Water Heater - Tankless |
| Bathroom Total | 3 |
| Bedrooms Above Ground | 3 |
| Bedrooms Below Ground | 1 |
| Bedrooms Total | 4 |
| Amenities | Fireplace(s) |
| Appliances | Garage Door Opener Remote(s), Water Heater - Tankless, Garage Door Opener |
| Architectural Style | Raised Bungalow |
| Basement Development | Finished |
| Basement Features | Walk-up |
| Basement Type | N/a (finished), N/a |
| Construction Style Attachment | Detached |
| Cooling Type | Central Air Conditioning, Air Exchanger |
| Exterior Finish | Brick, Vinyl Siding |
| Fireplace Present | Yes |
| Fireplace Total | 1 |
| Flooring Type | Tile, Hardwood |
| Foundation Type | Poured Concrete |
| Heating Fuel | Natural Gas |
| Heating Type | Forced Air |
| Stories Total | 1 |
| Size Interior | 1,100 - 1,500 Ft2 |
| Type | House |
| Utility Water | Municipal Water |
| Attached Garage | |
| Garage |
| Acreage | No |
| Sewer | Sanitary Sewer |
| Size Depth | 182 Ft |
| Size Frontage | 56 Ft |
| Size Irregular | 56 X 182 Ft |
| Size Total Text | 56 X 182 Ft |
| Zoning Description | R1 |
| Level | Type | Length | Width | Dimensions |
|---|---|---|---|---|
| Basement | Laundry Room | 3.61 m | 2.49 m | 3.61 m x 2.49 m |
| Basement | Family Room | 7.9 m | 4.57 m | 7.9 m x 4.57 m |
| Basement | Bedroom 4 | 3.56 m | 3.58 m | 3.56 m x 3.58 m |
| Basement | Bedroom 5 | 3.53 m | 3.58 m | 3.53 m x 3.58 m |
| Main Level | Foyer | 3.35 m | 1.57 m | 3.35 m x 1.57 m |
| Main Level | Living Room | 4.37 m | 7.78 m | 4.37 m x 7.78 m |
| Main Level | Dining Room | 3.89 m | 3.05 m | 3.89 m x 3.05 m |
| Main Level | Kitchen | 3.89 m | 3.05 m | 3.89 m x 3.05 m |
| Main Level | Primary Bedroom | 4.42 m | 3.38 m | 4.42 m x 3.38 m |
| Main Level | Bedroom 2 | 3.15 m | 3.07 m | 3.15 m x 3.07 m |
| Main Level | Bedroom 3 | 3.15 m | 3.07 m | 3.15 m x 3.07 m |
| Cable | Available |
| Electricity | Installed |
| Sewer | Installed |
https://www.realtor.ca/real-estate/28230935/656-devonshire-road-saugeen-shores-saugeen-shores
Contact us for more information
Debbie Duplantis
Broker
(519) 389-4600
(519) 389-4618
www.remaxlandexchange.ca/
Hayden Duplantis
Salesperson
(519) 389-4600
(519) 389-4618
www.remaxlandexchange.ca/